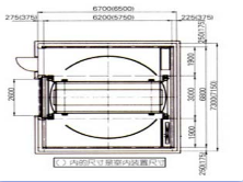
我們生活在汽車滿天飛的21世紀,面臨的問題不是堵車就是停車難,安徽立體車庫應運而生,那么在未來,立體車庫該向著哪些方向發展呢?
好了,若是您還想了解更多這方面咨詢 可以繼續關注我們公司,公司會定期為各位提供更優質的新聞哦!
智能停車的普及度在近年來得到了顯著提升...
了解詳情智慧停車運營管理服務融合了多種先進技術,以提高停車效率、優化...
了解詳情智慧停車運營管理服務可以應用在多個場景中,這些場景涵蓋了城市...
了解詳情智慧停車運營管理服務相較于傳統的停車管理方式,具有諸多顯著優...
了解詳情智慧停車運營管理服務是一種基于現代科技手段的創新解決方案,旨...
了解詳情中國城市停車難問題是一個日益凸顯的城市治理難題,主要受到機動...
了解詳情立體停車庫和普通停車場在多個方面存在顯著差異,這些差異主要體...
了解詳情智慧立體停車建設行業市場近年來展現出蓬勃的發展態勢,這一領域...
了解詳情智慧立體停車建設目前存在的主要問題有哪些...
了解詳情中國城市停車難問題的嚴重程度可以從多個方面進行評估,以下是對...
了解詳情咨詢熱線
來源:www.ey200.com 時間:2017-12-14
我們生活在汽車滿天飛的21世紀,面臨的問題不是堵車就是停車難,安徽立體車庫應運而生,那么在未來,立體車庫會向著哪些方向發展呢?...
我們生活在汽車滿天飛的21世紀,面臨的問題不是堵車就是停車難,安徽立體車庫應運而生,那么在未來,立體車庫該向著哪些方向發展呢?

掃碼進入手機站